Опыт
Опыт
Вахтовые городки: от вагончиков — к технологичным комплексам.
История компании «СтройпроектСервис» началась на Севере. Именно там, в 2007 году, компания начала свою деятельность в направлении сварочных и монтажных работ. Первые бригады размещались в простых строительных вагончиках, где одновременно располагались столовые, душевые, места для хранения продуктов и отдыха.
С годами организация росла, накапливала опыт, совершенствовала технологии. В 2021 году, был построен первый каркасный модуль для проживания рабочих. Это стало важным этапом в развитии компании.

Развитие шло стремительно. Появились двухэтажные общежития, а затем — полноценные вахтовые комплексы на сваях, включающие жилые модули и административные блоки. Благодаря внедрению современных решений стало возможным создавать большие комплексы за короткие сроки — со всей необходимой инфраструктурой: канализацией, отоплением, системами освещения и внутренней отделкой «под ключ».
Ключевой элемент конструкции — прочный металлический каркас из стали. Стены собираются из сэндвич-панелей с утеплителем из минеральной ваты. Все проекты разрабатываются в Иркутске, а затем реализуются на производственных мощностях компании. Общежитие поставляется на площадку как конструктор, который легко и быстро собирают наши опытные специалисты.

Производство полностью локализовано: от изготовления металлокаркасов до финальной отделки, включая мебельные панели и шкафы. На том же производстве создаются каркасно-тентовые конструкции, которые используются в качестве ремонтных мастерских и временных складов на стройплощадках.
Так, начав с простых вагончиков, «СтройпроектСервис» вышел на качественно новый уровень, предлагая клиентам комфортную и функциональную среду для работы в удалённых регионах.


Консультация и расчет стоимости

Разработка проекта

Собственное производство

Доставка и монтаж

Сдача объекта и сервисное обслуживание
Ваша идея — наше дело
Всё начинается с вашей идеи. Мы превращаем её в реальный проект, объединяя инновации, функциональность и точный расчет. Наши архитекторы, инженеры и дизайнеры работают не просто для вас — вместе с вами, чтобы создать здание, которое станет именно таким, каким вы его видите. Учитываем рельеф, климат, особенности участка и предлагаем решения, которые экономят Ваше время.

Процесс производства
После полного согласования проекта с заказчиком мы приступаем к производству. В наших современных цехах изготавливаются все металлоконструкции с точной подгонкой элементов, что позволяет минимизировать сроки монтажа на объекте. Каждый узел проходит контроль качества, включая визуальный осмотр, проверку сварных швов и антикоррозионного покрытия.

Каркасное строительство
Благодаря модульному принципу строительства, посёлок собирается на месте за короткие сроки — даже в зимний период и при ограниченном доступе техники. В комплектацию входят утеплённые сэндвич-панели, автономные инженерные системы (отопление, водоснабжение, канализация, электроснабжение), а также бытовые и производственные блоки по требованиям заказчика.

Логистика без задержек
Доставка — это не просто перевозка. Это искусство, которым мы овладели. Мы просчитываем каждый маршрут, контролируем каждую деталь и обеспечиваем бесперебойную поставку материалов точно в срок. Даже если возникают сложности — мы их решаем до того, как они станут проблемой.

Шеф-монтаж — на высоте
Высокая сложность? Сжатые сроки? Нестандартные решения? Для нас — это стандарт. Наши специалисты организуют и проведут шеф-монтаж любой сложности, гарантируя точность, безопасность и качество на каждом этапе. Работаем как команда профессионалов, где каждый знает своё дело и отвечает за результат.

Видео-обзор
Видео-обзор
В этом видеоролике вы увидите реальные примеры нашего строительства в различных климатических условиях.
Общежития расположены в:
- Арктике
- Красноярском крае
- Ханты-Мансийске
- Бодайбо
Вы сможете «прогуляться» внутри жилых комплексов и посмотреть, как организованы жилые и административные помещения.
Типовые решения





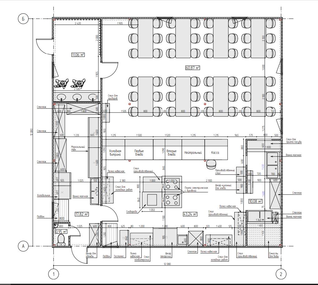
столовая на 48 посадочных мест
Модульная столовая — горячее питание для вашей команды, даже в самом отдалённом уголке страны!
Мы создаём готовые блок-модули для питания до 48 человек, которые можно установить за считанные дни — без фундамента, долгого монтажа и лишних затрат. Привезли — подключили — работаем!
Внутри
- Зона приёма пищи — просторно, светло, уютно. Столы, стулья, вентиляция и обогрев — всё включено.
- Производственная зона — полноценная кухня с местами для плит, холодильников, мойки и раздачи.
- Умывальники — для персонала и посетителей.
- Входная группа — защищённая от ветра и холода, с тамбуром для комфорта в зимний период.
- Всё необходимое оборудование и мебель — уже в комплекте.
Индивидуальный расчёт строимости



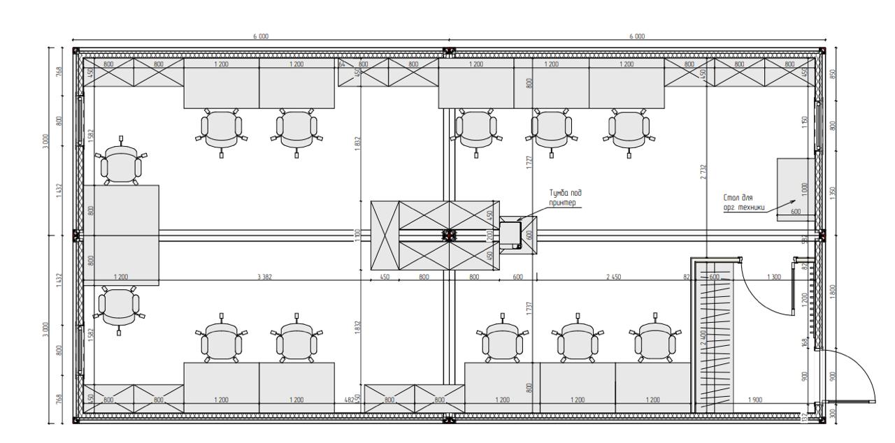
ОФИС НА 12 РАБОЧИХ МЕСТ
Ищете оперативное и практичное решение для организации рабочего пространства? Модульные здания — это универсальное и современное решение для любого бизнеса.
Установим качественный офис за считанные дни — в любое время года, даже в суровых условиях Крайнего Севера!
Мы — производим модульные здания с нуля, и знаем о них всё. Более 17 лет опыта в проектировании и строительстве объектов в экстремальных климатических зонах. Наши модули полностью готовы к эксплуатации: подключаем электричество, водоснабжение и канализацию — всё работает с первого дня.
Модульный офис — это не временно. Это удобно. Это навсегда. Доверьтесь производителю с реальным опытом. Построим быстро, качественно и без лишних затрат.
Индивидуальный расчёт строимости





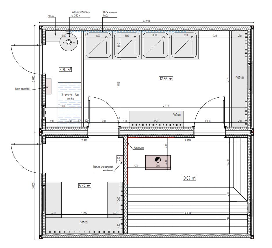
Вагон-баня
Вагон-баня для вахтовиков — тепло, пар и уют посреди тайги или тундры!
Мы знаем, что такое жизнь вахтовика. Поэтому создали практичную, тёплую и надёжную баню, которую можно установить прямо на стройплощадке, в лесу или на северном месторождении — в любое время года, даже при -60°C!
Всё подключено, утеплено и готово к работе: привезли — подключили — паритесь!
Внутри:
- Парная — с качественной теплоизоляцией и выбором типа печи (электрическая или дровяная)
- Душевые кабины — с регулировкой температуры и системой слива
- Раздевалка — просторная, с полками и вешалками
Индивидуальный расчёт строимости
СМИ о нас
СМИ о нас
На производственных базах «Жилкино» и «Боково» прошли съёмки для федерального телеканала РБК.
Наша компания стала участником специального репортажа о строительстве комфортных общежитий для вахтовых работников. В видео показан процесс создания каркасных общежитий.
Наша компания стала участником специального репортажа о строительстве комфортных общежитий для вахтовых работников. В видео показан процесс создания каркасных общежитий.












