Преимущества конструкции
Видео-обзор
Видео-обзор
Мы подготовили для вас видео-обзор, в котором вы увидите процесс производства и все детали комплектации.
Вы увидите:
- Полный процесс производства – от каркаса до финишной отделки.
- Детали комплектации – что входит в стандартную поставку.
- Качество материалов – почему наши модули надежны и долговечны.
- Внутреннее обустройство – продуманная планировка для комфортного проживания.
Типовые планировочные решения

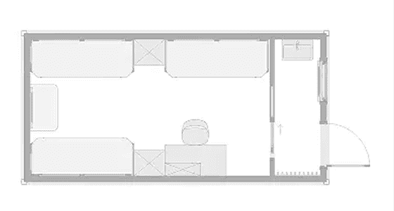
Вагон-дом жилой на 6 мест, 3х6 м

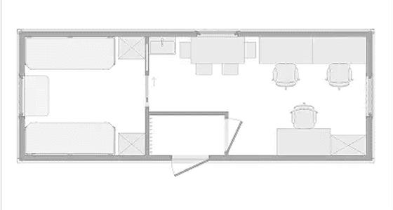
Вагон-дом жилой, офис 2,44х8х2,64

Бытовка 3х6 м

Гараж без окна и двери, 3х6 м

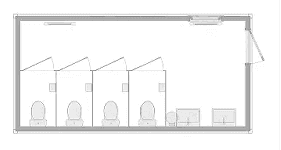
Душевая с ёмкостью 2,44х8 м

Бытовка 2,44х8 м

















